

Building narrative 很荣幸宣布,“No.43”——一栋位于广州西关历史街区的重建骑楼,于 2025 年 8 月 9 日正式开放。过去十年间,团队将旧建筑及室内空间逐步重建,这里也将成为工作室在中国大陆的办公室、民宿以及社区文化空间,融合东西文化、记忆与当下、研究与建造。同时,该建筑是 Building narrative 创始人、主创设计师Jeffrey Cheng的祖宅。
Building Narrative is pleased to open No.43, a reconstructed shophouse in the historic Xiguan neighborhood of Guangzhou, China. Incrementally rebuilt by the studio over the past ten years, No.43 opened its door on August 9, 2025 as the design studio’s Mainland office, a guesthouse, and community space at the intersection of East and West, memory and the present, research and construction. No.43 is the ancestral home of Jeffrey Cheng, Director of Building Narrative.
▼骑楼外观,overview of shophouse © KRISPROVOOST

建筑背景:文化融合、建筑演变及记忆交迭
Background
No.43 坐落于广州西关宝源路,一条受保护的历史街道,位于旧城西门之外,其建筑形态得以摆脱传统中式城市建筑规范而自由演变。除顺应岭南地区气候、材料及工艺之外,西关建筑还融合了西方设计语言与建造技术。这些技术通过“广州贸易体系”传入——尤其是沙面岛——在1757至1842年间,该地曾是中国唯一对外开放的通商口岸。
No.43 is situated on Baoyuan Road, a protected street in Xiguan district, Guangzhou. Just outside the west gate of the formerly walled city, the neighborhood’s architecture was free to evolve outside the norms of the formal Chinese city. Beyond adapting to regional climate, material and craftmanship, Xiguan architecture fuses design and building technology from the West, introduced via the Canton System when Xiguan (Shamian Island, in particular) was the only point of international trade in China between 1757 and 1842.
▼室内概览,overview of interior © KRISPROVOOST

43号的建筑风格是西关骑楼的典型代表。至1930年代早期,43号建成时,西关骑楼已普遍采用成熟的构造方式,将结构、功能运作与室内材料精细融合。其承重系统由砖墙及承托硬木梁组成,厨房、洗手间与阳台地板则审慎地采用了当时较新的钢筋混凝土技术。室内装饰包括花岗岩门框、铸铁栏杆、巧妙开启的彩绘玻璃窗,以及本地压制的嵌花瓷砖,构成一套完整的室内装饰体系,在43号得以实现,也广泛应用于西关骑楼建筑中。
The architecture at No.43 is typical for shophouses in Xiguan. By the early 1930’s when No.43 was constructed, Xiguan shophouses employed common practices that thoughtfully integrated structure, operation and material finishes. The structural system consists of loadbearing brick walls supporting hardwood beams with early use of reinforced concrete judicially used in kitchen, washroom and balcony floors. Granite frames, cast iron grills, innovately operated stain glass windows and locally pressed encaustic floor tiles formed part of a comprehensive system of interior finishes realized at No.43 and typical of shophouses in Xiguan.
▼完整的室内装饰体系,comprehensive system of interior finishes © Glen Xu

43号的居民也受西关多元文化的影响。自1953年起,该建筑便成为一个家族的住所,一楼曾为一所西医诊所,设有候诊室、三个病房、小型药房及带冲水功能的现代化卫生间,服务涵盖全科、小儿科及妇科。二楼便成为三代人的居所。如今, Jeffrey Cheng——在加拿大出生并研读建筑师专业——回到广州以建筑设计师的视角重改祖屋,成为43号第三代住户。
Occupants of No.43 mirror the diverse cultural influences in Xiguan. The building has been home to the same family since 1953 when the ground floor served as a Western medicine clinic consisting of a waiting room, three wards, a small pharmacy and modern flush toilet. A general physician, pediatrician and gynecologist practiced here. The second floor was where three generations of the No. 43 family have lived since. Jeffrey Cheng, born and trained as an architect in Canada, returned to China Guangzhou to rebuild the house and is the third generation to reside at No.43.
▼起居室,living room © KRISPROVOOST


室内设计:以“置换而非替代”唤醒记忆作为设计主轴
Interior Design
2015年,43号建筑被评估为结构不稳定,随后10年间,Building narrative工作室进行了一系列设计介入与研究。因原建筑已无法维持1930年代的状态,屋顶、楼板及结构皆需重建,加之许多室内饰面遭窃,原木楼梯也受到白蚁侵蚀。因此,设计团队决定采用一种融合旧有材料与当代工艺的方法,构建一个既怀旧又现代的建筑成果。
In 2015 No.43 was assessed to be structurally unsound, leading to a series of design interventions by Building narrative over 10 years. Preserving No.43 as it stood in 1930 was not an option. A new roof, floors and supporting structure was required. Many interior finishes were stolen, and the main wooden staircase was termite infested. In response, the studio decided to accept an outcome that would amalgamate material from the 1930’s with contemporary material and methodology.
▼怀旧又现代的建筑成果,contemporary material and methodology © Glen Xu

“置换”成为贯穿43号的记忆激活策略。受艺术家 Rachel Whiteread 建筑模铸作品的启发,设计团队将原木楼梯作为模具,浇筑混凝土。当原木楼梯拆除后,其轮廓以另一种形式呈现。换言之,工作室并未用新楼梯替代旧楼梯,而是将其“置换”——稍加抬升,并以不同材质重现,以此在空间中保留原楼梯的位置与记忆的空缺。
Displacement is a design strategy used to honor memory across No.43. By example, inspired by Rachel Whiteread’s architectural casts, we used the original timber staircase as a mould to pour the new concrete stair into. When the timber was removed, a silhouette of the original stair can be seen. That is Building narrative did not replace the timber staircase but displaced it, slightly elevated and in an alternate material. The ambition is to retain the original timber stair as in imprint, void or memory.
▼楼梯空间,stairs © KRISPROVOOST

结构层面的“置换”也显而易见。虽然原有砖墙被保留,新建钢架结构则承担屋顶与楼板的支撑功能。新的钢结构并未完全贴合原砖墙之间的空间,从主卧室望向北墙时,所见的缝隙仿佛时间的裂痕——原始建筑与新介入之间的距离。这段“空隙”,也正是光照进入的路径。
Another instance of displacement is seen in the structural approach. While the original brick walls were retained, Building narrative inserted a new steel frame to support a new roof and floors. The new steel structure does not fit the old brick enclosure completely. The spatial distance between the original north wall as seen from the new primary bedroom is perhaps analogous to a gap in time between the original building and new intervention. This gap is also how the light gets in.
▼楼梯细部,stair details © Charles LV


因地制宜:依据城市气候而“生长”的设计
Designing with Climate
西关建筑多建于原珠江口的稻田堤坝之上,地表下约一米即为地下水。在这片城市密度较高的区域,如何应对湿度与采光问题成为设计首要任务。三处天井,调光与通风的核心结构,因建筑狭长,空间围绕三个天井组织。中央天井将二楼前后套间隔开,是两户共享的空间,设有公共洗衣机与储物区。前套间的纱门可以向天井打开,必要时将公共空间“征用”为室内延伸。同时,玻璃地板可引导自然光照至一楼工作室的核心区域。
Xiguan is largely constructed over rice polders at the former Pearl River estuary. Ground water is a mere meter from the surface. Together with a compact urban environment, managing humidity and light is front of mind.Spaces within the long but narrow footprint are organized around three lightwells. A central lightwell separates the front and back apartments on the second floor. It is a communal area that buffers the two apartments and houses communal washing machines and storage. The screen door of the front apartment can swing into the courtyard space, expropriating the common space for an expanded interior when needed. A glass floor allows light to drive into the centre of the workshop below.
▼丰富的内部空间,diverse space © KRISPROVOOST

以“太阳烟囱”实现被动通风,建筑最尾端的天井贯穿楼层,在夏季风向引导下,热空气在此垂直空间上升,引导街道凉风进入,实现屋顶排热。这一设计在混凝土楼梯上方也被再次运用。金属楼梯以穿孔设计允许热空气上升至屋顶梯间。在两处“太阳烟囱”中,均配备传感器控制的机械风扇,于高温与高湿时自动启动,以增强通风效能。
A second lightwell connects all floors at the very rear of the house. Acting as a solar chimney, hot air rises in the vertical space, drawing air in from the street and passively exhausting at roof level in the direction of prevailing summer winds. A second such solar chimney is above the concrete stair. Hot air is permitted to rise through a perforated metal stair to a stairhouse on the roof. In both cases, passive venting is assisted with mechanical fans activated by high temperature and humidity sensors.
▼天井空间,A central lightwell © Glen Xu


43号的新生:作为工作室、民宿与社区交流中心
No.43 as workshop, guesthouse and community hub
43号的一层将成为 Building narrative 在中国大陆的工作室,用以承载香港总部延展的设计研究,如活动策划、模型制作与材料储备。设计团队与当地工匠、施工人员日常紧密合作,邀请进行一比一比例的实物搭建以测试设计构想。地处广东制造核心区,新办公室也将与香港和泰国项目的材料及构件加工方协同对接,完成我们在亚洲不同地点项目的有效、完整性落地。
The ground floor at No.43 will be home to Building narrative’s Mainland workshop. It is designed to accommodate functions not spatially feasible in the Hong Kong headquarters including events, model building and material storage. We engage with local crafts and tradesmen nearly every day, often inviting to build 1:1 mockups and test design ideas. Located in Guongdong’s manufacturing heartland, the new office will also liaise with material and component fabricators for ongoing projects in Hong Kong and Thailand.
▼办公空间,overview of office © KRISPROVOOST

空间展览与住宿功能融合在4.5米高的开放式首层,因此场地也特别适合举办展览、或是活动、拍摄场地。首场展览为艺术家 Justin Hui 的场地特定作品《Searching for Poon》,展期为2025年8月9日至12月1日。工作室内设有小型夹层,从香港前来工作的同事可于此短暂留宿。
With a 4.5m tall ground floor and open plan, the workshop is suited to host exhibitions, beginning with Artist Justin Hui’s site specific installation, Searching for Poon. The exhibition will be available from August 9-December 1, 2025. A small mezzanine floor is designed to host overnight stays for colleagues traveling from Hong Kong.
▼展览空间,workshop © KRISPROVOOST


通过接待客人分享西关记忆与设计,工作室楼上的两户公寓通过临街专用门进入。当家人不居住时,这些空间将作为“民宿”接待宾客。公寓内的装饰与摆设悉心策划,呈现西关文化特色——例如将原地砖改造为洗手间墙砖,部分彩绘玻璃重新装入作为室内隔屏。
Hosting guests are a means for Building narrative to share design work and memory of Xiguan with guests. Two apartments are located above the workshop. They are accessed by a dedicated door at the street and are designed as guestrooms when unoccupied by the family. Inside the apartments finishes and furnishings are currated to describe Xiguang culture. Original floortiles have been repurposed as wall tiles in the washrooms. Some stained glass is installed again as interior screens. Guests are free to use original dinnerware.
▼客房,guestroom © KRISPROVOOST

岭南与南中国当代设计文化的呈现,新添的家具与装置展现南方当代设计风格,包括香港艺术家 Nicholas Ho 与 Frankie Au,摄影师 Kris Provoost,家具设计师SingChan, 0321 Studio,WUU 及 Daqian Carpet.。供宾客使用的图书区也在逐步完善,精选英文书籍介绍南中国的设计与历史。
New furnishings and fixtures celebrate contemporary design culture of Southern China, including Hong Kong artists Nicholas Ho and Frankie Au, Photographer Kris Provoost, furniture designers SingChan, 0321 Studio, WUU and Daqian Carpet. An nascent library available to guests offer English language titles on southern China design and history.
▼呈现西关文化特色的装饰,furnishings describe Xiguang culture© KRISPROVOOST


施工过程:空间与不同“创造者”之间的故事
Construction
施工过程也是社区交流的契机, 在43号的建造过程中,工作室积极与当地邻里建立联系。左右两侧邻居分别是金属工匠与玻璃师傅,总承包商则位于街对面。木工师傅、材料供应商及来自粤港澳大湾区的工厂均参与其中。这些曾共同建造43号的人,如今也成为工作室持续合作的业务伙伴。
The construction process itself was a means to engage the local neighbourhood. Metal workers and glass cutters were No.43 left and right side neighbours. The general contractor is across the street. Carpenters, suppliers and factories from the Greater Bay Area were employed. The people who helped build No.43 are the same suppliers that we continue to build the business with.
▼卫生间,restroom © KRISPROVOOST

▼细节,details © KRISPROVOOST


施43号的工过程被收录于纪录片《春秋广付》(Memories of Canton)中,展现了建筑与地方文化之间深刻的互动与记忆的延续,并于2019年在中央卫视播出。
The construction process was featured in the documentary ‘Memories of Canton’ and aired on CCTV in 2019.
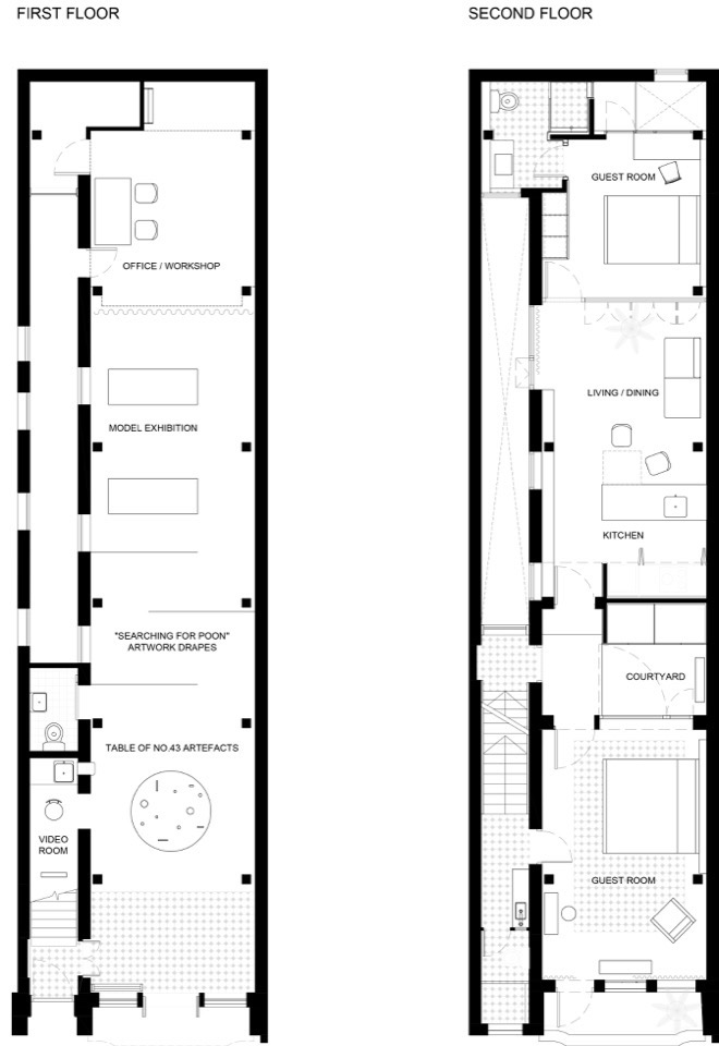
▼平面图,floor plan © Buiding narrative

设计团队: Benji Wong, Cheng Leung, Herbert Tam, Janice Chan, Jeffrey Cheng, Jenny Yuen, Kitty Lai, Kwan-Chak Mathew Man, Nattalie Lau, Mavis Liu, Paul Wong, Staci Tsai, William Hon
视觉设计: Meat Studio
摄影: Glen Xu, Xiaobin LV
活动营销与社交媒体: Christopher Wong、Jessie Zhang
公共关系: Murphy
特别感谢华南理工大学的Hao Hao教授及Ms Wang, Noumen 设计的 Alex Chan



