

在中国中部地区的冬天,白雪、灰蒙蒙的天空和光秃秃的树木组合在一起,形成一幅灰暗的单色调景象。该项目试图用独特的方式让客人在冬季体验“色彩”,其灵感来自于二十世纪早期上色的黑白电影,当时艺术家们在每个黑白帧上手绘透明色层,由于颜色不在物体上,而是漂浮在空中,最终形成梦幻般的效果。
During winter in central China, a combination of white snow, grey sky, and leafless trees results in a gloomy monochromatic picture. The project is the attempt to create a unique way to “colorize” our guests’ experience. The inspiration came from the colorized B&W films in the early 1900’s when the artists hand-painted transparent color layers onto each B&W frame. The result was surreally colorful since the colors were not at the objects, but floated in the air.
▼建筑与环境,the building and the surroundings ©W Workspace

▼雾中的酒店,the hotel in the mist ©W Workspace

这个想法被应用到该项目的建筑语言中,建筑立面采用受中国竹制脚手架启发的双层格栅结构,其间布满深浅不一的蓝色和洋红色玻璃。这一系统赋予立面复杂的深度和色彩,使室内空间洒满彩色光线,将阳台打造成单一建筑元素,并使灰暗的天空从内部看起来更加明亮。
The idea was adopted into architectural language. The facade is doubled with lattice structure inspired by Chinese bamboo scaffolding, filled with shades of blue and magenta glazing. This system gives depth and color complexity to the façade, floods interior spaces with colorful light, combines balconies into a single architectural element, and brightens up the gloomy sky while looking out from the inside.
▼建筑外观,exterior view ©W Workspace

▼立面采用双层格栅结构,the facade is doubled with lattice structure ©W Workspace

▼外部廊道,external corridor ©W Workspace

▼由廊道望向立面,view to the facade from the corridor ©W Workspace

▼深浅不一的蓝色和洋红色玻璃,shades of blue and magenta glazing ©W Workspace

▼彩色玻璃背后的室内空间,the interior space behind the stained glass ©W Workspace

▼光影细部,details ©W Workspace

MIST温泉度假村位于距离河南郑州一百公里的许昌市。自唐代以来的一千多年里,这里一直被认为是中国最著名的温泉胜地,每年冬天都有各地的人们来这里泡温泉。MIST的目标是成为河南的新地标,全年吸引国内外游客前来旅游。这里的最佳自然资源藏在地下——中国最好的地热水。当地热水被抽上来时,它会散发出薄雾,漂浮在水面上。室内设计的灵感就来自于温泉雾气本身的美。探索雾和水这两种自然现象的特定装置被设计和安装在整个酒店,构成连接整个体验的主要元素。这些具有视觉冲击力的装置不是装饰,而是与建筑和室内空间密不可分的存在。
The MIST Hot Spring Resort is located in Xuchang prefecture, 100 km. from Zhengzhou, a capital of China’s Henan province. This region of China has been considered the nation’s most famous hot spring destination for over a thousand year since the Tang Dynasty era. During the four months of winter, people from all over China visit its abundant hot springs. The MIST aims to be a new landmark of Henan that will attract both domestic and international travelers to the province all year round. The best natural attribute of the site is hidden down below – it is China’s finest geothermal underground water. As the heated water is brought up, it gives off gently lingering mist floating above the water surface. Our inspiration for interior design came from the beauty of the hot spring steam itself. Architecturally-scaled site-specific installations exploring natural phenomenon relating to mist and water are designed and installed throughout the hotel as the main elements that tie the entire experience together. These visually impactful installations are not added as decorations, but inseparably integrated into architecture and interior space.
▼温泉胜地,hot spring resort ©W Workspace

在大堂和酒吧,装置由数百层透明及彩色水晶组成,其灵感来自于穿过热雾气的光谱,可以根据观众的位置从侧面、末端或从装置本身的半透明体积中看到不同的效果。这个清透的装置还露出远处迷人的湖景。它的内部空间保持单色,水晶和地灯点缀了色彩。
For the lobby and bar, an installation made of hundreds layers of clear and color crystals is inspired by a spectrum of light passing through hot steam which can be viewed differently depending on position of the viewers from the side, from the end ,or from inside the translucent volume of the installation itself. The lake landscape beyond is enchantingly seen through the sheer installation. Its interior space is kept monochrome with color accents in crystals and floor lighting sculptures.
▼大堂和酒吧,the lobby and bar ©W Workspace

▼由数百层透明及彩色水晶组成的装置,the installation made of hundreds layers of clear and color crystals ©W Workspace

▼地灯点缀装置,the floor lighting adorns the installation ©W Workspace

在餐厅,以雾气轮廓为灵感的装置定义了座位区和厨房区,亚克力边缘的颜色变化在不同时间段呈现出不同的氛围。
In the restaurant, an installation inspired by silver-lining silhouette of steam defines seating and kitchen zones. Color-changing light at the edge of the acrylic planes gives different moods through different time of the day.
▼餐厅,the restaurant ©W Workspace

▼装置细部,details ©W Workspace

在宴会厅,精致的亚克力环构成半透明且不规则的云状结构。这个天花装置加上地面的云朵图案,给空间带来不同寻常的轻盈感。分散在云朵装置中间的变色灯则营造出适合宴会厅不同功能的各种氛围。
In the ballroom, a matrix of delicate acrylic rings forms a semi-transparent, irregular cloud-like shape. This ceiling installation, together with the cloud pattern on the floor carpet, gives an unusual feel of lightness to the space. Color-changing lighting rings scattered in the midst of the cloud installation creates different moods suitable to different functions held in the ballroom.
▼宴会厅,the ballroom ©W Workspace

▼聚会空间,the gathering space ©W Workspace

为了打破酒店走廊的单调性,客房之间不是由典型的走廊连接,而是由一系列漂浮在中庭的桥梁组成。自然光从天窗或端墙照进室内,突显出由不锈钢瓷砖和黑色石材制成的“雾”的图案。中庭的大型装置受到露水和水滴两种水状态的启发,引起了人们对尺度和重力的错觉体验。所有客房长边均朝向景观,以享受冬季阳光。其室内采用统一色调,与建筑概念保持一致。
To break through the monotony of hotel corridors, guest rooms are not joined by a typical corridor, but a series of bridges floating in the atriums. Shafts of natural light come in either from skylight or the end wall highlighting the “mist” pattern made of stainless steel tiles and black stone. Large installations in the atrium inspired by two states of water – the Dew and the Droplet, stimulate an experience of an illusive sense of scale and gravity. All the guest rooms orientate their long side to the view and to benefit the winter sun. Its monochrome interior surface treatment was originated directly from the main architectural concept.
▼酒店走廊,the hotel corridor ©W Workspace

▼水滴形态的装置,the installation in the form of water droplets ©W Workspace

在这里,色彩作为一种立体的建筑元素,而不是装饰材料,不仅创造了独特的视觉体验,还创造了空间。
Here, color is used as a three-dimensional architectural element, not as finishing material, to create not only unique visual but also space.
▼夜景(近景),close-up night view ©W Workspace

▼夜景(远景),distant night view ©W Workspace

▼雪景鸟瞰,aerial view ©W Workspace

▼首层平面图,ground floor plan ©Department of ARCHITECTURE

▼二层平面图,first floor plan ©Department of ARCHITECTURE

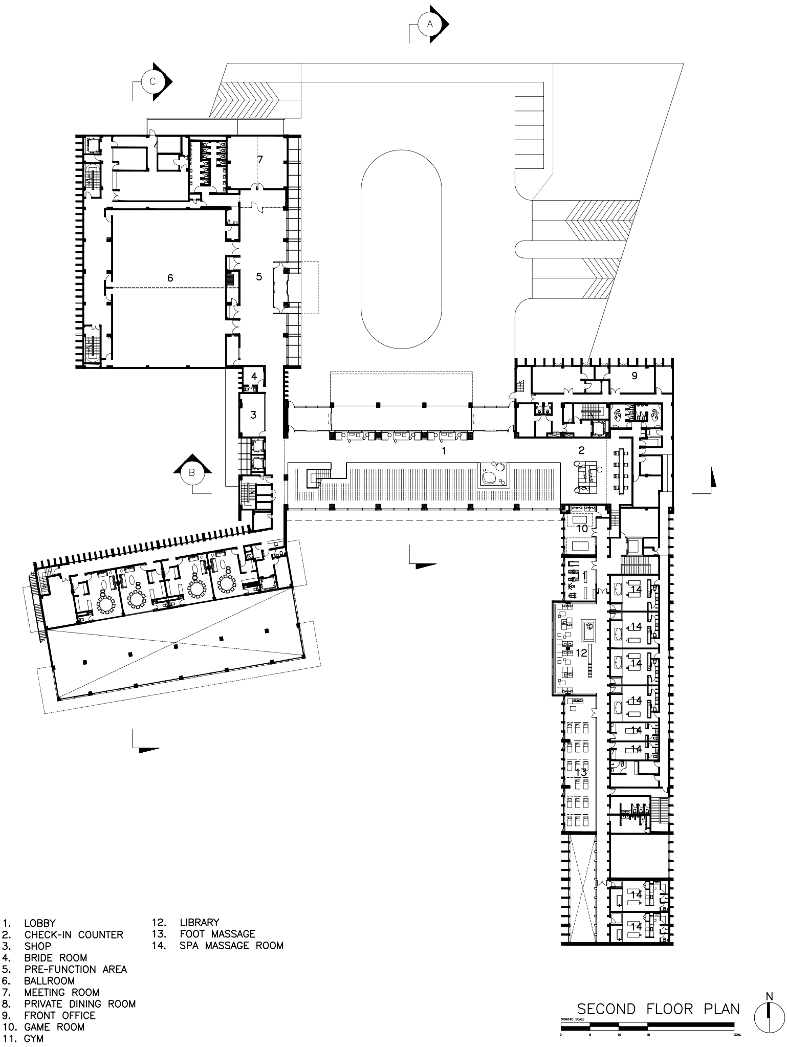
▼三层平面图,second floor plan ©Department of ARCHITECTURE

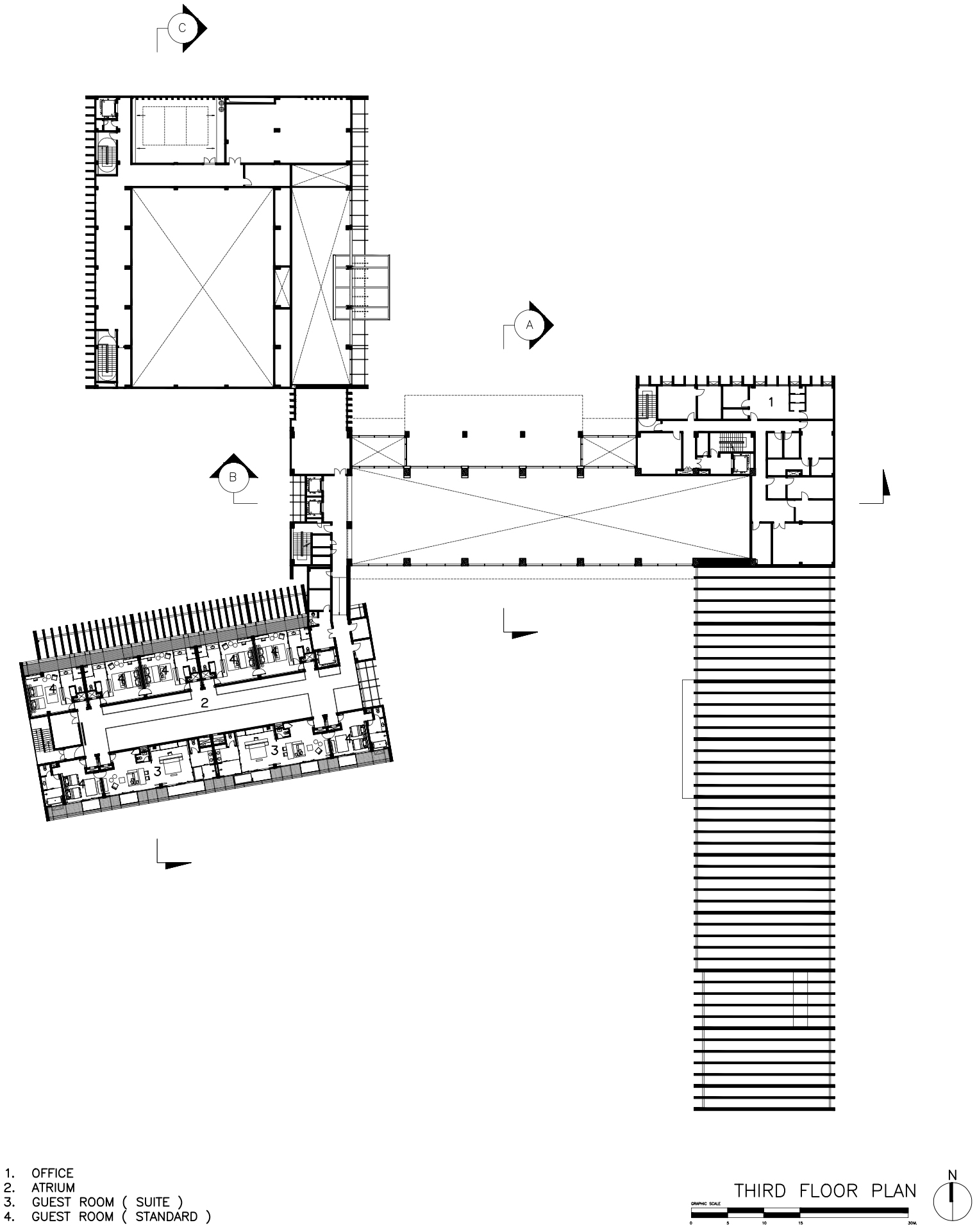
▼四层平面图,third floor plan ©Department of ARCHITECTURE

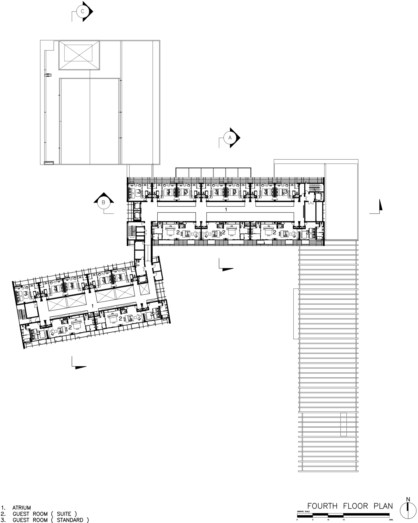
▼五层平面图,forth floor plan ©Department of ARCHITECTURE

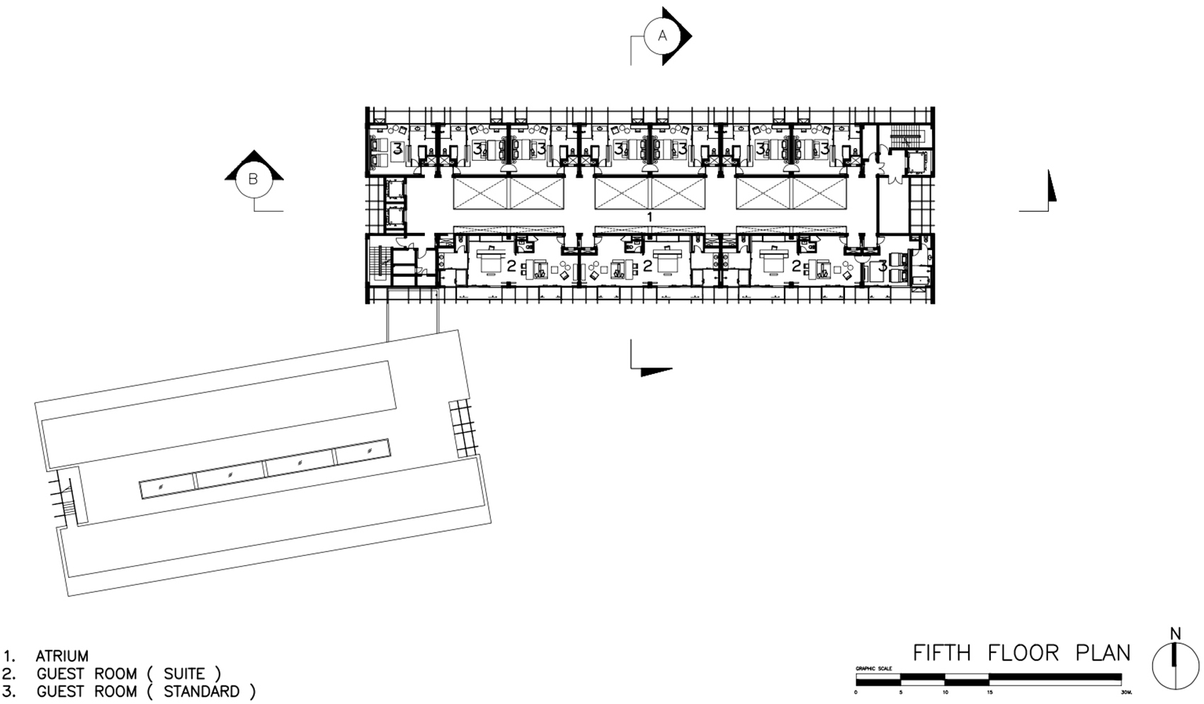
▼六层平面图,fifth floor plan ©Department of ARCHITECTURE

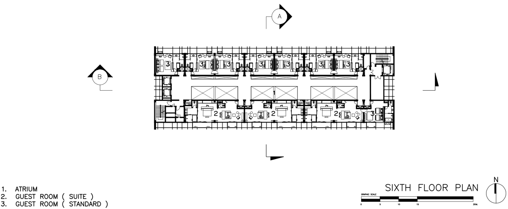
▼七层平面图,sixth floor plan ©Department of ARCHITECTURE

▼南&东立面图,south & east elevations ©Department of ARCHITECTURE

▼北&西立面图,north & west elevations ©Department of ARCHITECTURE

▼剖面图A&B&C,section A&B&C ©Department of ARCHITECTURE

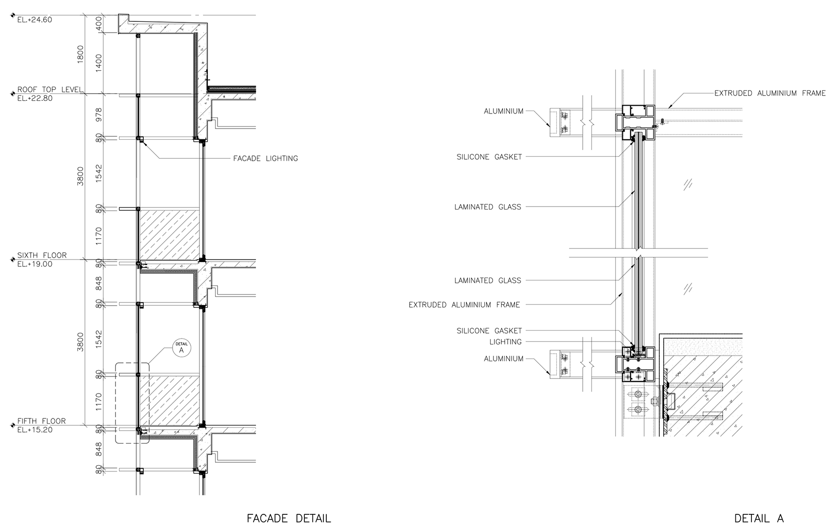
▼构造细部,details ©Department of ARCHITECTURE




