

这座住宅位于一处安静住宅区的旗杆地块上。设计的关键在于如何最大限度地利用约100坪(约330平方米)的宽敞场地。委托人是一位首饰设计师,夫妻二人曾长期在海外生活,对艺术与设计有着深入理解,并希望生活空间在材料质感、色彩氛围等方面都具备高品质。同时,他们深受旅行至摩洛哥时当地建筑的吸引,想在住宅中融入那样的氛围。
This house stands on a flagpole site in a quiet residential area. The key to the design was how to make the most of the spacious site of 100 tsubo (approx. 330 m2). The client is a jewelry designer, and as a couple, they have lived abroad, so they have an understanding of art and design, and they expected the living space to be rich in quality, such as the texture of materials and a sense of color. They were also fascinated by the architecture of Morocco, where they traveled, and wanted to incorporate that atmosphere.
▼入口,entrance © Hiroshi Ueda

▼围合式庭院空间,Enclosed courtyard space © Hiroshi Ueda

基于这些原因,我们决定采用类似里亚德(riad)的方式,将各个房间围绕庭院布置。与其说是单一庭院式的环绕布局,不如说是在场地中分散设置多个庭院,使每个房间都能接触到户外空间。庭院也以与建筑相当的墙体围合,通过遮挡来自周边的视线,确保户外与室内都拥有同等高品质的私密性。这样一来,无论身处住宅的哪个位置,都能感受到阳光与舒适的微风,实现惬意的居住体验。庭院中的植栽增强了与自然的连接,最大限度地带来清新与放松的效果。尤其是象征性的橄榄树,为住宅增添力量与安心感,成为家的精神支柱。
For that reason, we decided to plan the rooms to be arranged around a courtyard like a riad. Rather than a simple courthouse that surrounds the center, the garden is scattered in various places on the site, so that each room can access the outside space. The garden is also surrounded by walls equivalent to the architecture, and by blocking it from the surrounding area, we ensure that both the outdoors and the indoors have the same high-quality private space. This resulted in a comfortable home where you can live while feeling the sunlight and the comfortable breeze no matter where you are. The plants in the garden give you a sense of connection with nature, maximizing the effects of refreshing and relaxing. In particular, the symbolic olive tree gives the house a sense of power and comfort, and is a foundation for the home.
▼庭院一角,Corner of the courtyard © Hiroshi Ueda

▼玄关空间,Entrance hall © Hiroshi Ueda

▼挑高空间与顶部木质梁架结构,Double-height ceiling with wooden beams © Hiroshi Ueda

▼从餐厅望向象征性的橄榄树庭院,
View from the dining area toward the symbolic olive tree courtyard © Hiroshi Ueda

一层作为以厨房为核心的公共空间,二层为私密房间,空间分布清晰明了。但所有房间都与散布其间的庭院和露台相连,使人不仅能在平面上自由穿行,也能在立体动线上穿梭于室内外。穿过如迷宫般的动线与小巷般的走廊后,会突然进入类似广场的庭院,我认为我们营造出了一个充满趣味、令人联想到“里亚德”的空间。
The first floor is a public space centered around the kitchen, and the second floor is a private room, making it easy to understand, but all the rooms are connected to the gardens and terraces scattered throughout, allowing you to move around inside and outside in a three-dimensional way as well as on a flat surface. After passing through a maze-like traffic flow and an alley-like corridor, you will find a square-like garden, and I think we have created a fun space like a “riad”.
▼厨房与餐厅正面视角,Frontal view of the kitchen and dining area © Hiroshi Ueda

▼挑高的餐厨空间,Double-height dining and kitchen space © Hiroshi Ueda

▼餐厅与庭院之间的开放连接,Open connection between the dining area and the courtyard © Hiroshi Ueda

▼厨房,kitchen © Hiroshi Ueda

▼挑高厨房与餐厅空间的上方视角,
Upper-level view of the double-height kitchen and dining area © Hiroshi Ueda

▼厨房与楼梯区交界处的空间,Intersection of the kitchen and stair area © Hiroshi Ueda

材料选用了灰泥、瓷砖与木材,它们随着时间推移会展现出不同的质感变化,同时也将委托人自制的家具与黄铜五金融入空间作为点缀。建筑本身简洁现代,但在细节与饰面中引入有机元素,为居住者保留了自行塑造空间的余地,让生活的乐趣与变化的喜悦得以生长。凭借丰富的材质表达,这座住宅既精致又富有层次,也格外衬托出委托人多年收藏的古董杂物与艺术品,让居住者的品味充分展现。
The materials used are plaster, tiles, and wood, which can be enjoyed as they change over time, and the client’s own furniture and brass hardware made by the client are also incorporated into the space as accents. The architecture is simple and modern, but the well-balanced space adds organic elements in the finishes and details, leaving room for the resident to create it, bringing joy to living and the joy of change. This home is sophisticated, yet rich in expression due to its texture, and it brings out the antique miscellaneous goods and art that the client has collected over the years, bringing out the resident’s sense of style more than anything else.
▼起居室,Living room © Hiroshi Ueda


▼夜间的客厅空间,Living room at night © Hiroshi Ueda

▼安静的工作与阅读氛围,calm atmosphere for work or reading © Hiroshi Ueda

当我们思考一个家应该具备什么时,我们认为它应当是一处能让人长久享受、幸福生活的场所。而在这座住宅中,我们感到这些都得以实现。这完全得益于与委托人之间的良好协作,以及过程中产生的美好缘分。
When we think about what is required of a home, we think of it as something that can be enjoyed and lived happily for a long time, and we feel that we have been able to realize all of that in this home. We feel that this is entirely due to the good collaboration with the client and the happy connections that led to it.
▼从厨房望向庭院,View from the kitchen toward the courtyard © Hiroshi Ueda


▼屋顶与庭院夜景,Nighttime rooftop and courtyard view © Hiroshi Ueda

▼通往屋顶的旋转楼梯,Spiral staircase leading to the rooftop © Hiroshi Ueda

▼首层平面图,1F plan © Naoi Architecture

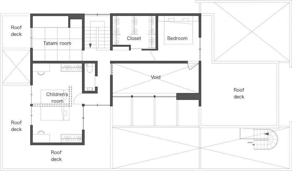
▼二层平面图,2F plan © Naoi Architecture

▼剖面图,section © Naoi Architecture




