

融苑位于广州越秀区东山口春园后街,靠近中共三大会址,距离热闹的庙前西街只有几分钟的步行距离。这里洋房密集,店铺与住宅混合。
Rongyuan is located in Dongshan Kou, Yuexiu District, Guangzhou, near the three major historic sites and just a few minutes’ walk from the bustling Miaoqian West Street. In this area, there are many Western-style houses mixed with shops and residences.
▼项目外观,Exterior view © 谌利

建筑南侧与西侧是围墙,与小巷相邻,东山口的洋房多为混凝土结构,在之前不同的租户手中经历了几轮装修后,结构经过了改动和加固,首层有了较大的开间,楼梯也从入口处移到了靠近后门的位置。二楼被隔墙分成了三个房间,室内光线幽暗。
The building’s southern and western sides are surrounded by walls and adjacent to a small alley. The Western-style houses in Dongshan Kou are mostly made of concrete. After going through several rounds of renovations by different tenants, the structure has been altered and reinforced. The ground floor now has bigger open spaces, while the staircase has been moved from the entrance to a location near the back door. The second floor has been divided into three rooms by partitions and the interior lighting is relatively dim.
▼一楼空间概览,Overall view of first floor space © 谌利

宇宙的猜想作为新的租户承接空间,计划将展览,零售,书店等功能引入融苑,如何将这几个不同的功能区块与两层的洋房有机结合是设计中首先考虑的问题。我们将建筑原有的封闭门窗替换为透明门窗,将光线与视线从引入室内,在一楼的大开间布置零售,在二楼布置展览与书店。
As the new tenant, Cosmic Speculation plans to introduce functions such as exhibitions, retail, and a bookstore to Rongyuan. The first challenge in the design process was how to seamlessly integrate these different functional areas with the two-story Western-style house. We replaced the original closed doors and windows with transparent ones to bring in light and views to the interior. Retail spaces are arranged on the ground floor, while exhibitions and a bookstore are located on the second floor.
▼一楼的大开间,Open space on the first floor © 谌利



位于后门的楼梯间较为封闭,为了将顾客引导进二楼,我们将楼梯一侧的隔墙拆除,另一侧隔墙开窗洞,设置新的台阶,形成扩大的台阶平台,人们可以从不同方向进入楼梯,进入这个窗框里的“景观”。靠近小巷的窗户与围墙只有不到30厘米的距离,同时围墙遮住了窗户一半的视野,我们将围墙按照窗户的形状切开方洞,并将窗户悬挑架在墙洞上,让光线和视线进入室内,窗户同时可以作为橱窗展示商品。
The staircase area near the back door was relatively closed off. In order to guide customers to the second floor, we removed one side of the partition and created a window opening on the other side. We also added new steps to create an expanded platform where people can enter the staircase from different directions and enjoy the “landscape” within this window frame. A light wall was placed in front of the back door to block the view of the hall and extends upwards along the staircase to provide illumination and guide customers to the second floor. The windows near the small alley are only less than 30 centimeters away from the wall. Since the wall blocks half of the view from the windows, we cut openings in the shape of the windows in the wall and suspended the windows from these openings to allow light and views into the interior. Some of the windows can also serve as showcases for displaying merchandise.
▼一楼楼梯处,The stairs © 谌利

▼楼梯处的窗框,The window frame at the stairs © 谌利

二层空间多数隔墙被拆除,留下一堵隔墙分隔开展览与书籍区。将阳台原本的封闭门窗拆除,在室内设置新的玻璃隔墙,形成扩大的阳台,提供交流休息的场所。
Most of the partitions on the second floor were removed, except for the ones separating the exhibition and bookstore areas. We removed the closed doors and windows of the balcony and replaced them with a new glass partition to create an expanded balcony as a place for people to rest and communicate after visiting the bookstore and exhibition. The original door and window openings were preserved, and the exterior wall here became the “new balcony’s partition.”
▼二楼空间,Second floor plan © 谌利


▼二楼拆除了多数隔墙,Most of the partitions on the second floor were removed © 谌利

▼二楼扩大后的阳台区域,Expanded balcony area on the second floor © 谌利

▼信箱处,The mail box © 谌利

像百年前这里的花园洋房一样,中西风格混杂的背后,是好奇与开放,我们设想以同样的方式处理品牌在洋房里的呈现。拆除吊顶,裸露出原始的混凝土楼板,并与之前租户留下的装修,比如花色瓷砖,深色花岗岩台阶,铁艺楼梯栏杆,深色木门套,等等不同时间段存在与建筑中的景象并置。局部破损的墙面与地面用新的花岗岩替换,墙面贴上墙布,放置深色多层板家具。新加入的材料与家具没有选择迎合一种怀旧的样式,也没有选择努力的制造反差,而是如同在作为一种勾缝剂,在不同年代的风貌中创造新的连接。
Another challenge we faced in the design process was how to showcase the brand within the Western-style house space. Just like a century ago when these garden-style houses were built, the mixture of Eastern and Western styles represents curiosity and openness, which is also consistent with our understanding of the Cosmic Speculation brand. Therefore, we envisioned treating the remaining and new decorations inside the space in the same manner. Many of the old patterned tiles, granite steps, staircase railings, door frames, and some suspended ceilings were preserved. New granite was used to replace parts of the damaged walls and floors, wallpaper was added to the walls, and multi-layered plywood furniture painted in dark colors was placed inside. The new materials and furniture did not choose to cater to the nostalgic style, nor did they choose to create a contrast, but like a jointing agent, create a new connection in the style of different ages.
▼街道侧细部,Details of street view © 谌利

▼其它空间细部,Details of other space © 谌利

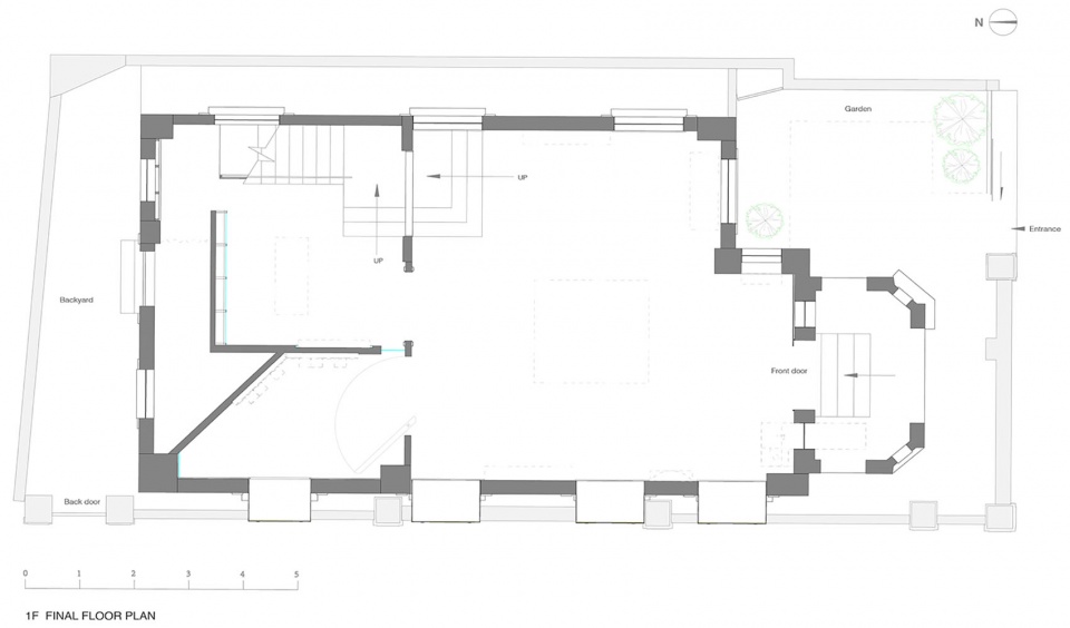
▼改造后一楼平面图,1F final floor plan © archive studio

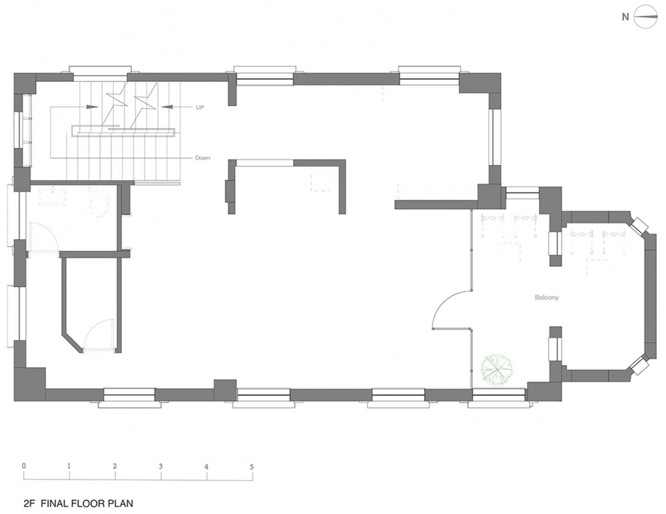
▼改造后二楼平面图,2F final floor plan © archive studio

项目名称: cosmic speculation 广州融苑
类型:建筑改造/室内设计/家具设计
设计方:archive studio
项目设计:2023
完成年份:2023
设计团队:谌利
项目地址:广东省广州市越秀区东山街道瓦窑后横街10号1-3层
建筑面积:200㎡
摄影版权:谌利
客户:cosmic speculation
材料:乱纹不锈钢/ 花岗岩/磨砂玻璃



