

在该项目的开放式的房间里,住户可以在浓密的榕树下与朋友们一起烹饪、就餐,或是共度下午时光。设计将现有的花园转变为房子的另一个空间,创造了一个居住空间中的绿洲。这里成为了日常活动的中心,住户可以在愉悦的地中海气候中尽情享受生活。该项目为一座位于两墙之间、带有小花园的两层住宅进行的翻新和扩建。
Cooking, eating, and sharing the afternoon with friends under the leaves of a dense ficus tree in an open-air room. Turning the existing garden into an other room of the house creates an oasis within the neighborhood where much of the daily activity happens while enjoying the pleasant Mediterranean climate. The project consists of the renovation and expansion of a two-story house with a small garden located on the ground floor of a small block between party walls.
▼日常活动的中心,the daily activity space © Eugeni Bach

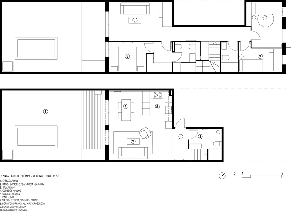
原始建筑的地面层为厨房和餐厅,且与花园相连,楼上为卧室,但原始户型缺少客厅。该项目的任务是通过打造与现有庭院相连的新空间来翻新和扩建。
The existing house had a kitchen and dining room on the ground floor, in contact with the garden, and bedrooms on the first floor, but it did not have a living room. The assignment consists of renovating and expanding the house by providing it with this new space in contact with the existing patio.
▼新的客厅,the new living room © Eugeni Bach


▼餐厅,the dining room © Eugeni Bach


这一设计策略在于改变思路,设计团队没有直接扩建房屋,而是将厨房移至室外,腾出室内空间用于安排客厅和餐厅功能。通过这种方式,设计团队确保所有空间都可与庭院相连,并且从这些空间中均可享受到相互之间以及向外延展的远景。
▼设计策略手稿,strategy sketch © Anna & Eugeni Bach

The strategy consists of changing the question and, instead of expanding the house with this piece, we moved the kitchen outside to free up space inside for the living room and the dining room. In this way, we ensure that all these pieces are in contact with the patio and that from all of them, we achieve long views between them and towards the exterior.
▼新的厨房空间,the new kitchen © Eugeni Bach


新增加的建筑部分采用类似温室的木材和玻璃结构。这一新部分选址在永远不会有强烈日照的地方,这主要是由于建筑本身和邻近建筑的阴影。另一方面,由于这一新增部分非常通透,确保了地面层的其他部分依然能够享受到自然光。
▼轴测图,axonometric drawing ©Anna & Eugeni Bach

The new volume is made with a structure of wood and glass, like a greenhouse, in a location where there is never a big insolation due to the shadows of the building itself and the neighboring ones. On the other hand, the addition being such a transparent piece, we ensure that the rest of the ground floor continues to enjoy natural light.
▼小花园,the garden © Eugeni Bach


▼通透的空间,the transparent space © Eugeni Bach

▼灵活的空间变化,flexible spatial variations © Eugeni Bach

扩建部分的立面脱离了原有建筑的垂直线条,解放了原本封闭室内空间的两个拱门,这两个拱门现在作为客厅、餐厅与新建的走廊(包含厨房和书房)之间的过渡。通过分离立面,新扩建部分的外壳摆脱了原建筑的约束,并进行了一些微小的弯曲,这样可以在活动频繁的区域(无论是室内还是庭院)创造更多的空间。
The new façade of the extension is detached from the vertical line of the property, freeing the two arches that originally enclosed the interior space and that now act as a transit between the living-dining room and the new gallery with the kitchen and study. By separating the façade, the new envelope is freed from the guidelines of the existing building, making small inflections that allow more space in the areas of more activity, both inside and in the patio.
▼拱门,the arches © Eugeni Bach



▼过渡空间,the transit space © Eugeni Bach



▼室外空间,the outdoor space © Eugeni Bach

在建筑的二层,设计团队对房间内的家具做了小幅调整,客厅兼书房的空间进行了重新规划,其目标是在不必要的区域尽量避免相互干扰。
On the first floor, small changes are made to the furniture in the rooms, and the living room/study is reformulated, with the aim of not intervening in those areas where it is not strictly necessary.
▼总平面图,site plan ©Anna & Eugeni Bach

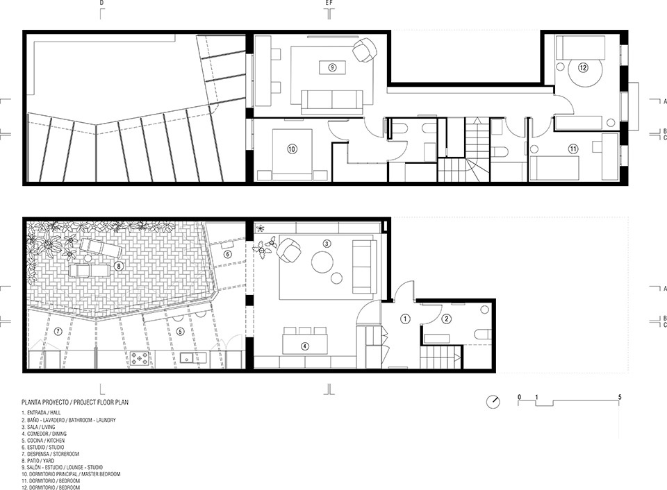
▼各层平面图,different floors plan ©Anna & Eugeni Bach


▼剖面图,section drawing ©Anna & Eugeni Bach




▼细部图纸,details drawing ©Anna & Eugeni Bach





