

由FutureFirm设计的Hem住宅是一栋由金属包覆的、面积为1300平方英尺(约121平方米)的房子,为当代建筑在芝加哥开辟了更广泛的市场。项目位于EastGarfield公园社区,由HemDevelopment实施开发和建造——该公司由FutureFirm的联合负责人CraigReschke与芝加哥房地产开发商JosephRoot联合经营。
FutureFirmhasdesignedHemHouse,ametal-clad,1,300-sfhomethatmakescontemporaryarchitectureavailabletoabroadermarketinChicago.Locatedinthecity’sEastGarfieldParkneighborhood,theprojectwasdevelopedandconstructedbyHemDevelopment,ajointventurebyFutureFirmco-principalCraigReschkeandChicagorealestatedeveloperJosephRoot.
▼俯瞰住宅,Aerialview©DanielKelleghan

虽然Hem住宅与附近的经济适用房并不存在竞争关系,但它有助于填补住房类型中“缺失的中间部分”。在该街区的其他位置,新建住宅的起步价约为60万美元,而Hem住宅的目标是为正在租房或有兴趣在该街区安家的业主提供多样化的住房选择,其价格大约等同于多单元的公寓建筑。
WhileHemHousedoesnotcompetewithsubsidizedaffordablehousingintheneighborhood,theprojecthelpsfillinthe“missingmiddle”ofhousingoptions.Newconstructionelsewhereintheneighborhoodbeginningat$600k,HemHouseisanefforttodiversifythestockofhomesavailableforfolkswhoarecurrentlyrentingorareinterestedinmovingtotheneighborhood,atasimilarpriceasacondoinamulti-unitbuilding.
FutureFirm联合负责人AnnLui表示:“芝加哥拥有非常活跃的艺术和文化场景,但定制的当代建筑却并不多见,现有的住宅建筑往往价格高昂——因此我们希望可以改变这种局面。”
另一位负责人Reschke补充道:“我们想用具有战略性的建造方案和设计理念来打造一座住宅,使成本相对降低,从而为芝加哥空置的住宅用地提供新的利用可能。”
“Whilethere’saveryvibrantartandculturesceneinChicago,thereisn’talotofbespokecontemporaryarchitecture,andwhatexistsinresidentialisalmostexclusivelyveryhighend—sowe’rehopingtohelpchangethatnarrative,”saysAnnLui,FutureFirmco-principal.
“Wewantedtocreateahouseusingafewstrategicconstructionanddesignideastokeepcostsdown,asanideaforChicago’svacantresidentiallots,”addsReschke.
▼客厅入口立面,Entrancetothelivingroom©DanielKelleghan

Hem住宅坐落在EastGarfield公园内的一条住宅街道的中间位置,与当地公共绿地和交通站点的距离均在步行范围内。从尺度上看,住宅和谐地融入了其所在的背景;从平面布局和材料上看,它与周围典型的砖石连排别墅和双户住宅形成了显著对比。
HemHousesitsinthemiddleofaresidentialstreetinEastGarfieldPark,withinwalkingdistanceofthelocalpublicparkandpublictransportation.Inscale,thestructureadherestoitscontext,whileinplanandmateriality,itstandsoutfromthetypicalbrickandstonetownhousesandtwo-flatsthatsurroundit.
▼住宅与周围典型的砖石建筑形成显著对比Thehousestandsoutfromthetypicalbrickandstonestructuresthatsurroundit©DanielKelleghan

该项目对芝加哥典型的25×125英尺的住宅地块做出调整,创建了一种宽度较小(16英尺)的住宅类型,并留出6英尺的后退区域,以置入宽敞的侧边花园、中央入口和横跨长立面的窗户。通过这种方法,Hem住宅提供了一种易于复制的大两居住房模式,可以完美适应芝加哥的大多数空置住宅用地。
▼设计分析图,Diagram©FutureFirm

TheprojectreorientsthetypicalChicago25x125-footresidentiallotbycreatinganarrower,16-foot-widehomewitha6-footsetback,allowingforanamplesidegarden,centralentrance,andwindowsliningthelongfacade.Inthisway,HemHouseoffersaneasilyreplicablemodelforaspacious,two-bedroomhomethatfitsseamlesslyonthemajorityofChicago’smanyvacantresidentiallots.
▼长立面一侧留出6英尺的后退区域,Thereisa6-footsetbackliningthelongfacade©DanielKelleghan

▼两个体量被黑色金属壁板包覆,Thevolumesaremonolithicallycladinblackmetalsiding©DanielKelleghan

住宅由两个体量堆叠而成:一层是一个较长的矩形体量,二层是一个150平方英尺(约14平方米)的小体量。两个体量被黑色金属壁板包覆,这种材料通常被用于屋顶,给人一种锋利且整洁的观感,同时也具有较好的耐用性和较低的维护成本。单坡屋顶由简洁的预制桁架构成,可以便捷地进行安装,且能够减少排水槽中的积水和场地内的雨水。此外,住宅采用了板式结构,降低了挖掘的成本,同时也更加方便轮椅和婴儿车的通行。
▼轴测分解图,Axonexploded©FutureFirm

Thehomeconsistsoftwostackedvolumes—alongrectangularfirststorywithasmallerrectangular150-sfmezzanineontop—whicharemonolithicallycladinblackmetalsidingtypicallyusedforroofing,givingasharp,cleanlookwhilealsobeingdurableandlowmaintenance.Asingle-slopedroofismadefromsimplepre-fabtrusses,allowingforfastandeasyframingandthereductionofguttersandstormwateronsite.Additionally,thehouseisslabongrade,adecisionwhichreducedexcavationcostswhilealsocreatingamoreaccessiblespaceforwheelchairusers,strollers,andothersimilarconditions.
▼入口区域,Entryway©DanielKelleghan


▼采光良好的厨房和生活区,Thelight-filledkitchenandlivingarea©DanielKelleghan

▼L型的厨房使布局的可能性最大化©DanielKelleghanAnL-shapedkitchenarrangementmaximizeslayoutpossibilities

▼楼梯通往夹层,Staircaseleadingtothemezzanine©DanielKelleghan

▼室内细节,Interiorview©DanielKelleghan

▼夹层空间,Themezzanine©DanielKelleghan

▼夹层一角,Acornerofthemezzanine©DanielKelleghan

该设计策略还为位于侧边花园中央的入口留出了空间:玻璃材质的前门向洗衣房区域开放,为整个门廊区域带来充足的光线。两间卧室被集中设置在门廊右侧;两面大尺寸的落地窗和一面较小的平开窗面向侧边花园,为主卧室带来了最大程度的采光和隐私性。
Thisstrategyalsomakesroomforanentrancethatiscentrallylocatedonthesideyardofthebuilding,whereaglassfrontdooropensontoacombinationmudroomandlaundryroomandfloodstheentrywaywithlight.Totherightoftheentryway,onthestreetside,FutureFirmhasgatheredthehome’sbedrooms.A220-sfprimarybedroommeasuringthefullwidthofthehomesitsatthebackofthehouse.Twolargepicturewindowsandonesmallercasementwindowfacethesideyardtomaximizelightandprivacyintheprimarybedroom.
▼起居室,Livingroom©DanielKelleghan

▼楼梯和家具细节,Staircase&furnituredetail©DanielKelleghan

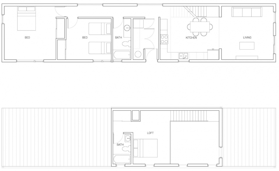
▼平面图,Floorplans©FutureFirm




