

和同时期建造的许多住宅一样,该建筑曾经不止一次地经历过翻新和重建。业主自1970年代得到布莱顿住宅的产权,随着家庭人口的增长,他们的需求也在不断增加。在1990年代,他们委托建筑师John Cuthbert进行过一次扩建。而在今天,基于不同以往的生活环境,设计团队需要以业主的退休生活为中心,重新创造能够让全家人齐聚一堂,同时考虑到孙辈成员生活习惯的居所。
Like many dwellings from this period, the home has been a building site more than once during the course of its existence. In this case, the clients have owned this Brighton property going back to the 1970s. And as their family grew so did their needs and eventually they commissioned an extension in the 1990s which was designed by architect John Cuthbert. What began as a ‘small update’, this project is yet another rebuild iteration based on an emerging set of life circumstances centred around a retired lifestyle, periodic family gatherings, and entertaining grandchildren.
▼主入口立面,Main entrance facade © Tom Blachford

▼新增加的体量,The additional volume © Tom Blachford

▼新建立面,The new-built facade © Tom Blachford

▼外观局部,Exterior partial view © Tom Blachford


▼大尺寸窗户和镂空屏墙 © Tom Blachford
The large size window and the perforated screen

▼从立面开口望向餐厨区 © Tom Blachford
View to the dining area and kitchen through the opening

项目的设计目标在一些地方对既有房屋的物理限制提出了挑战,虽然该住宅并非受保护的历史遗产,但所有改建和扩建的工作依然尽可能地保留了建筑和景观的既有特征。同时,作为建筑爱好者的业主也参与其中,他放弃了采用全新设计的做法,而是选择对既有建筑实施合理的干预,严谨地将新元素缝合在建筑的内部与周围。
The project brief at one point appeared to challenge the physical limitations of the existing home, and whilst the structure was not a registered heritage place, all efforts were made to consider how an alterations and additions project can maintain and preserve as much of the character of the existing house and landscape as possible. In the end, the clients, being avid architecture enthusiasts, were onboard and an all new design was abandoned in favour for a sympathetic set of architectural interventions, rigorously stitched in and around the existing building.
▼半室外平台,The semi-outdoor deck © Tom Blachford



▼客厅,Living room © Tom Blachford

▼客厅局部,Living room interior view © Tom Blachford


通过消除房屋平面中的死角,室内空间的分区变得更加合理和开放,并且能够根据居住者的需求变化扩展或缩小。
By removing dead-ends in the plan, the extension looks to replace cellular rooms of the existing home with a more open plan zonal arrangement, capable of expanding and contracting in response to the changing needs of the occupant.
▼通透的居住空间,An airy space of living © Tom Blachford

▼厨房和吧台,Kitchen and bar © Tom Blachford

▼吧台细节,Bar detailed view © Tom Blachford


▼厨房细节,Kitchen detailed view © Tom Blachford

增建部分的体量采用了最简单的材料和形式。起伏的屋顶回应了当地的住宅环境——其倾斜的提升了主要起居区的天花板高度。立面上的门窗、天花板、拱腹和户外平台均采用了产自澳大利亚的硬木。室内的木材使用低VOC(挥发性有机化合物)的硬蜡油加以处理。窗户则换上了高性能的双层玻璃。
The massing of the additions is underpinned by a minimal approach with regards to materiality and form. Undulating roof forms are a direct response to the local fine grain residential context of the site – the raked underside of which displace generous ceiling heights above the main living areas. Australian sourced hardwood clads the punctured facade openings, ceilings, soffits and decking. Where timber is installed internally, it is coated with Low VOC hardwax oils. Windows where replaced were upgraded with high performance double glazing.
▼倾斜的屋顶提升了主要起居区的天花板高度,The raked underside of the roof displace generous ceiling heights above the main living areas © Tom Blachford

▼室内以大面积木制表面覆盖,The interior walls and surfaces are cladded in wood © Tom Blachford

▼室内一角,Interior view © Tom Blachford

该项目得以实现的关键是设计方案与既有结构在理念上的统一,即实现历史与现代元素之间的平衡。原来的壁炉被翻新和保留下来,并且成为了设计方法的灵感来源。楣梁、踢脚线和挂镜线等元素在得到精心修复的同时,也为住宅中的新空间增添了现代性的诠释。
Key to realising this project was this notion of unification between the existing structure and the proposed design. Between period and contemporary. Existing fireplaces were refurbished, retained and formed an integral part of the design approach. Architraves, skirtings, picture rails and the like were all not only painstakingly restored, but also informed contemporary reinterpretations in the new portions of the home.
▼卧室,Bedroom © Tom Blachford


旧建筑不可更改的部分为设计提供了坚实稳固的基础,从一定程度上避免了不切实际或铺张浪费的改造想法。
The undeniable character of old buildings like this, provide an indelible foundation on which architecture can avoid whimsy and needless extravagance.
▼浴室,Bathrooms © Tom Blachford




▼场地平面图,Site plan © FIGR Architecture & Design

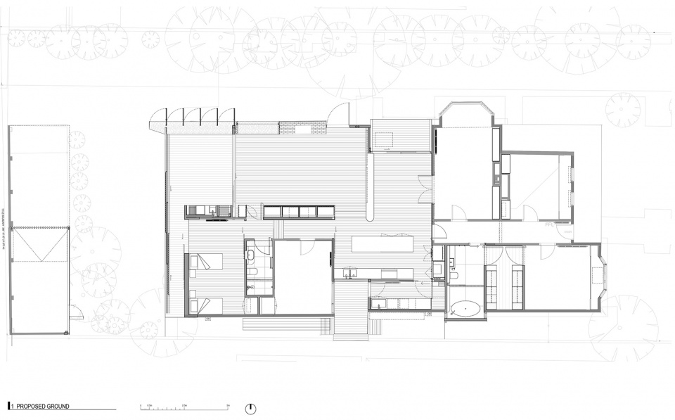
▼一层平面图,Ground floor plan © FIGR Architecture & Design

▼屋顶层平面图,Roof plan © FIGR Architecture & Design

▼北立面图和西立面图,North elevation and west elevation © FIGR Architecture & Design

▼南立面图和东立面图,South elevation and east elevation © FIGR Architecture & Design

▼剖面图,Sections © FIGR Architecture & Design




